产品技术详细说明

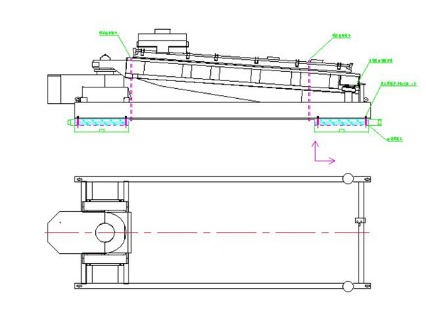
本次选用的RS四川精细振动筛,是我公司科研人员,在吸收国外成熟筛机技术,经过开发改进而设计生产的一种成熟筛分设备,该设备具有筛分效率很好,筛网利用率高,占地空间小,安装使用方便,没什么污染,噪音低,维护方便等点,用户反应良好,至今已在国内多个化工项目和其它行业中广泛采用。
目前,国内多采用通用的筛机来筛分细颗粒或粉料,筛分效率低,占用空间大,安装维修不太方便,工人劳动强度比较,噪间和污染高,生产环境比较差。
本新型的回转式振动筛分设备正是针对上述问题而设计的,它通过特定的往复旋转式运动方式和低度倾斜的筛面,使物料快速通过筛网,达到筛分的效率和产量都更好。并配备自动张紧和自动清洁的筛网安装系统,达到用户所理想的筛分效果。全封闭的结构,符合工作环境的环境保护要求;几乎没有对地面基础的垂直冲击载荷,使得该系列筛分机有更广阔的市场应用环境。
A.回转式振动筛的结构使用特点
a)独特的回旋往复式运动方式
b)网面自动张紧系统装置
c)筛面自清洁清扫装置
d)动平衡驱动系统
e)快速开启的顶盖安装系统装置
B.回转式振动筛的设计优特点
物料从设备顶部进入并迅速分散在筛网表面宽度上,快速流向出料端,小于网孔的物料透过筛网,大的物料留在筛面上,从而完成筛分作业。
a)两种筛分运动方式
往复回旋式的运动方式可将物料快速的分散,筛分,特殊的往复回旋运动,使物料与筛面始终保持接触,能在没有垂直振动和跳动的情况下,将物料快速分散和透筛,物料筛分精细均匀,筛分效果良好。
b)自清网系统,
根据物料颗粒的物理特性和产成品要求,必须保证筛分时筛网不粘不堵,安装在筛格方框中的弹跳球,筛分时通过直接撞击筛网,弹去粘在筛网上或卡在筛网上的杂物和颗粒,使筛网表面保持干净不堵孔,从而保证筛机高标准的筛分效率和产量。
c)网面自动张紧装置
筛网设计为四周有多个安装孔的标准通用形式,通过安装在筛格四周的弹性夹头,将其安装在筛格上,并使筛网保持均匀的张紧力,使筛面始终处于张紧状态,经过筛分的物料粒度均匀,标准筛网也使快速更换筛网成为可能,降低了停机时间,提高了生产效率。
d)驱动平衡系统
驱动装置的动平衡设计使筛分运动不产生过大的振动冲击,使设备安装在悬吊装置上面而不影响筛分效果。
加装的进料和布料装置,既保证密封不漏料,又保护筛网避免受到下落物料的直接冲击,并提高了物料分布在整个筛面宽度上的时间,使物料进入筛机后迅速铺开,从而能更有效的利用筛网面积。
以上所述平面四川精细筛设备,填补了国内高标准筛分设备的生产空白,具有结构实用,性能稳定可靠,安装调试方便,制造费用低等优点,
另外,整台设备为钢丝绳索吊挂安装形式,几乎没有垂直运动的方式,避免了设备对地面或楼板的动载荷冲击,延长了轴承使用寿命,减少了基建投资,设备生产噪音小于85dB,低于国家规定的标准,完全符合生产环境的噪音要求,是一种很有推广使用价值的新型设备。
上一个:四川rotex工艺筛 下一个:四川1530精细筛分机
相关标签:精细筛,RZSJ-1825平面精细筛,
来源:http://sichuan.xxrtjx.com/product782160.html
时间:2021/11/8 17:18:05
相关新闻
相关产品
四川RZSJ-1825平面精细筛
四川化肥精细筛
四川精细筛分设备厂家